For Sale
4 Bed 4 Bath Villa in Finestrat
Finestrat, Finestrat, Spain
  • 950,000€

Overview

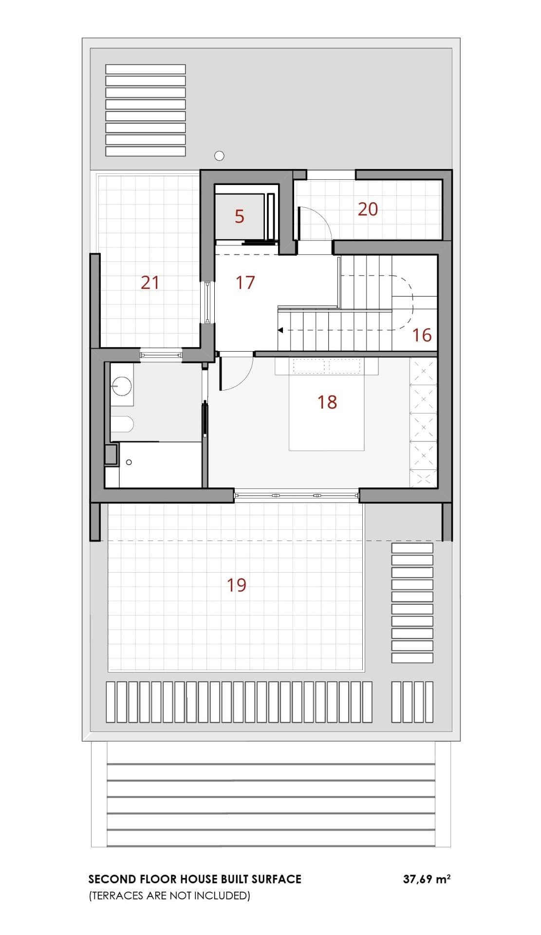
Property ID: N7627
  • N7627
  • Property ID
  • Villa
  • Property Type
  • 4
  • Bedrooms
  • 4
  • Bathrooms
  • 620
  • Lot m²
  • 315
  • m²

Description

NEW BUILD VILLAS IN FINESTRAT

New Build Modern villas in Finestrat.

Villas with 4 bedrooms and 4 bathrooms, open plan kitchen with lounge area, terrace with magnificent views over Benidorm, private garden with swimming pool and parking space.

The lateral garden, adorned with cacti and white gravel, connects the Access Level 1 with the main floor (Level O).

The use of natural grass in the rest of the terrain is presented as an additional feature through a meticulously designed landscaping project.

Each level is accentuated with a material that enhances its essence. Level O is clad in natural limestone, providing support to the entire structure.
Level 1, with its monolayer finish and wooden shutters, safeguards the most intimate part of the residence.
Finally, Level 2, where the master bedroom is located, opens up to a spacious terrace and is finished with textured monolayer in a warm tone.

The Mediterranean aesthetic is achieved through a perfect fusion of tradition, modern architecture, and nature.

Finestrat located in the Marina Baixa region of the Costa Blanca, close to neighbouring Benidorm and about 40 kilometres from the city of Alicante and the international airport.

The village is situated on the mountainside of Puig Campana and offers beautiful views of the mountains, the coast and the Mediterranean Sea.

Benidorm is just a five-minute drive from the properties and offers all the services you would need including shops, bars, restaurants, supermarkets, banks, pharmacies and several private international schools.

  • Area Finestrat
  • Country Spain

Details

Updated on June 10, 2025 at 11:08 am
  • Property ID: N7627
  • Price: 950,000€
  • Property Size: 315 m²
  • Land Area: 620 m²
  • Bedrooms: 4
  • Bathrooms: 4
  • Property Type: Villa
  • Property Status: For Sale

Compare listings

Compare
Vela Club
  • Vela Club

Please, Fill in the form to Download Our Buyers Guide

Please, Fill in the form to Download Our Buyers Guide