For Sale New Build
3 Bed 2 Bath Villa in Los Alcazares
Los Alcazares, Los Alcazares, Spain
  • 599,000€

Overview

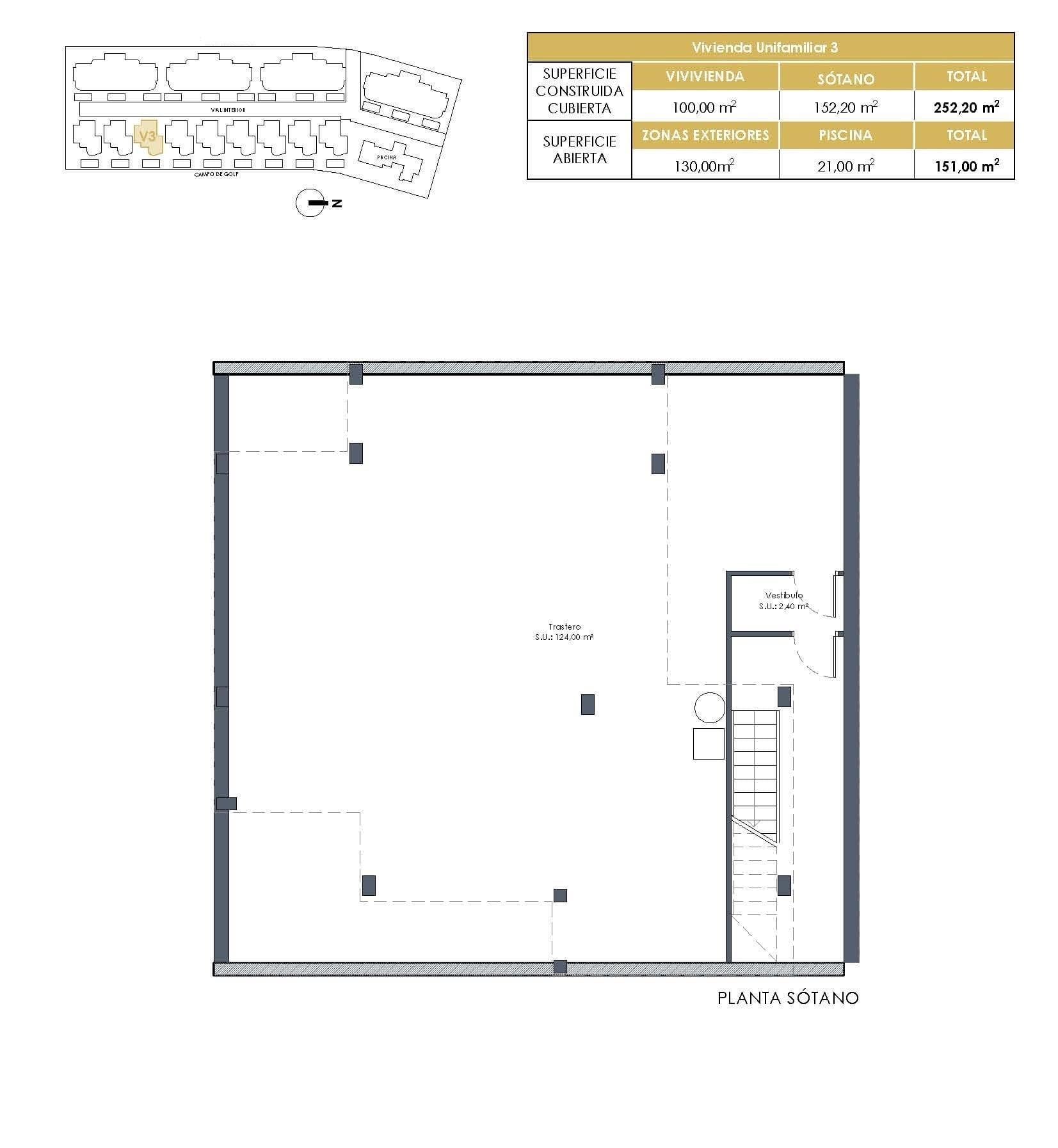
Property ID: N9674
  • N9674
  • Property ID
  • Villa
  • Property Type
  • 3
  • Bedrooms
  • 2
  • Bathrooms
  • 250
  • Lot m²
  • 252
  • m²

Description

New Build Golf Front Apartments and Villas in La Serena Golf Los Alcazares

Exclusive Residential Development Frontline to La Serena Golf

Discover this exceptional new build residential development located frontline to La Serena Golf in Los Alcazares, one of the most desirable coastal towns on the Costa Calida. This exclusive community offers a premium lifestyle surrounded by nature, open views and direct access to a renowned 18 hole golf course known for its flat terrain, scenic lakes and technical challenges.

Ideally situated just 1.7 km from the beaches of the Mar Menor and the town center, residents can enjoy both tranquility and easy access to restaurants, shops and all essential services. Los Alcazares is well known for its relaxed atmosphere, long promenades and warm shallow waters, making it perfect for year round living or holiday stays.

Modern Apartments with Terraces and Private Solariums

The development includes 36 contemporary apartments distributed across four blocks. Buyers can choose between two or three bedroom layouts with two bathrooms, including an en suite.

Ground floor apartments feature spacious terraces with the option to add a private pool. Middle floor units offer generous outdoor terraces, while penthouses include private solariums ideal for sunbathing and outdoor dining.

All apartments include underground parking and a storage room with elevator access. The community also offers beautifully landscaped Mediterranean gardens and a large communal swimming pool for residents to enjoy.

Stylish Single Level Villas with Private Pool

In addition to the apartments, the development offers nine exclusive single level villas. These homes feature three bedrooms, two bathrooms and an additional guest toilet, all designed to provide seamless indoor and outdoor living.

Each villa includes a private swimming pool, garden, storage room and private parking. A spacious open basement provides additional flexible space that can be adapted to suit individual needs such as a gym, entertainment area or extra storage.

High Quality Finishes and Energy Efficient Design

All properties are built with high quality materials and modern specifications. Features include aluminum exterior carpentry with thermal break, fully equipped bathrooms with vanity units and glass shower screens, and pre installation for ducted air conditioning and furnished kitchens in apartments.

Villas come with fully installed air conditioning systems and fully equipped kitchens with appliances. Elevators are available in apartment blocks, ensuring comfort and accessibility.

Prime Location Close to Golf, Beaches and Amenities

This development offers excellent connectivity to key points of interest. Murcia International Airport is 35 km away and Alicante Airport is 95 km. The marina of Los Alcazares is just 2 km away, Dos Mares shopping center is 15 km and Roda Golf is only 4 km from the development. Cartagena city center is located 25 km away.

Ideal Investment and Mediterranean Lifestyle Opportunity

This golf front development offers a unique opportunity to enjoy modern living in a privileged setting close to both the sea and golf.

Contact us today to receive more information or to arrange a viewing and find your perfect home in Los Alcazares.

Property ID: REDSP

  • Area Los Alcazares
  • Country Spain

Details

Updated on May 1, 2026 at 12:21 am
  • Property ID: N9674
  • Price: 599,000€
  • Property Size: 252 m²
  • Land Area: 250 m²
  • Bedrooms: 3
  • Bathrooms: 2
  • Property Type: Villa
  • Property Status: For Sale, New Build

Compare listings

Compare
Vela Club
  • Vela Club

Please, Fill in the form to Download Our Buyers Guide

Please, Fill in the form to Download Our Buyers Guide